YGSTUDIO
studio d'architecture
OPERATION DE 11 LOGEMENTS COLLECTIFS
25BIS RUE MAX DORMOY / RUE GAUDON - 91300 MASSY
préc
suiv
Maître d'Ouvrage : ELYTEA
Maîtrise d'Oeuvre : Yann Gautier (missions ESQ/APS/APD/PC) - ADC Architectes.
Construction d'une opération de 11 logements collectifs composée de 4 logements T1, 3 logements T2, 3 logements T3 et 1 logement T4.
Surface de plancher créée : 613 m²
Surface parcelle : 587 m²
​
Montant des travaux : NC

NOTE DESCRIPTIVE
Le terrain est situé sur la commune de MASSY, au 25BIS, rue Max Dormoy et rue Gaudon.
Le terrain a une physionomie en L et dispose de 2 alignements sur 2 voies différentes; la rue Max Dormoy, prolongement de la rue Gambetta, axe principal qui traverse le «Vieux Massy» et la rue Gaudon, voie secondaire, perpendiculaire à celle-ci et présentant une forte pente descendante depuis la rue Max Dormoy.
​
Le tissu urbain est composé de constructions anciennes d’habitats individuels et de petits collectifs sur la rue Max Dormoy, prolongement de la rue Gambetta.
​
Le bâtiment projeté est implanté le long de la rue Max Dormoy et est séquencé par un décalage existant d’alignement. Cette disposition créée une discontinuité du linéaire de façade sur rue et permet ainsi de conserver une échelle du bâti projeté en rapport avec les constructions existantes le long de cet axe.
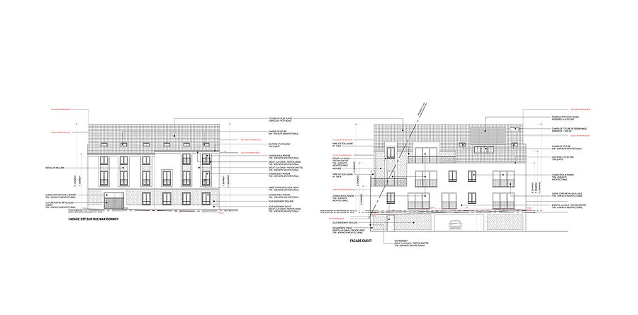
L’image architecturale se rattache aux bâtisses environnantes avec des traitement d’éléments en meulière, dont le sous bassement et des médaillons entre fenêtres en façade sur rue Max Dormoy et le traitement en sous bassement et en partie haute du bâti en décalage sur la façade arrière OUEST.
​
Le reste du bâti est traité en enduit, avec composition de modénatures et de corniches, conférant un aspect maison bourgeoise en référence aux 2 bâtisses anciennes, en meulière, situées de part et d’autre du projet et présentant un traitement de façade ordonnancé avec une composition de façade traduisant la «Façade Principale» côté rue (modénature, corniche et mise en valeur de l’accès aux bâtiments).
​
Les ouvertures du bâtiment projeté sont de composition verticale, dans l’esprit des bâtisses bourgeoises en meulière et que l’on remarque sur les 2 bâtisses situées de part et d’autre du projet.
Les gardes corps sont métalliques, à barreaudage verticale de faible épaisseur venant accompagner la verticalité des ouvertures.
​
Côté parking, façade OUEST, le terrain décaissé apporte une hauteur au bâti plus importante que sur la rue Max Dormoy.
Les décrochés de façades, en partie haute, venant créer des terrasses accessibles en toiture de ceux -ci, sont traités comme un élément bâti sur un socle qui vient se rattacher au sol et qui participe au traitement de façade du niveau parking couvert, mais non clos, sur une partie des stationnements.
Le traitement épuré de façade de cet élément socle est différencié de l’esprit travaillé de la façade en retrait, en partie haute de celui-ci, et qui reprend les codes architecturaux de la façade sur rue (traitement en meulière, modénature et corniche ...)
La façade de l’élément socle est traité en enduit, et est ponctuée de larges ouvertures.
Le sous bassement est traité en meulière en reprenant également les codes architecturaux de la façade sur rue (traitement en meulière, modénature et corniche ...)
Cette cassure des volumes et la redescente ponctuelle de la toiture permet une montée progressive du bâti, en évitant ainsi un effet de barre, tout en conservant une cohérence à l’ensemble. (préservation de la notion de petite échelle).
​
​






PLAN DE MASSE


PLAN DU RDC
PLAN DU SOUS SOL

PLAN DU R+1

PLAN DES COMBLES

FACADES PRINCIPALES
